Lianyungang Water Meter Co., Ltd. Since 1966
  • 
  • Home
  • Products +
    • OEM Service
    • Markets
    • About Us +
      • Company Profile
      • History
      • Quality Assurance
      • FAQ
    • Contact
    • Home
    • Products
    • Mechanical Water Meters
    • Woltman Bulk Water Meters
    • Woltman Helix Water Meter (Vertical Installation)

    Vertical Woltman Helix Water Meter

    Bulk water meter with dry dial
    Vertical Woltman Helix Water Meter
    Vertical Woltman Helix Water Meter Vertical Woltman Helix Water Meter Vertical Woltman Helix Water Meter
    Request a Quote

    Stepping away from the conventional, our Woltman helix water meter with vertical installation brings a fresh perspective to large-diameter pipeline metering. This meter is known for its dynamic flow handling and minimal pressure impact. When water courses through this meter, it drives the uniquely shaped helical impeller in an axial flow, converting the water's velocity into a quantifiable volume displayed on the meter.

    Applications
    • From the kitchen to the bathroom, Woltman helix water meters are ideal for metering household water usage.
    • Tracks water flow in commercial establishments and light industrial facilities.
    • These water meters are a reliable choice for water measurement in schools, hospitals, and other public institutions.
    Specifications
    Nominal diameter Overload flowrate Q4 Permanent flowrate Q3 Q3/Q1 Q2/Q1 Transitional flowrate Q2 Minimal flowrate Q1 Maximum reading Resolution of reading
    P type M type
    mm m³/h m³
    40
    50
    65
    50 40 160 1.6 0.4 0.25 999,999 0.0005 0.0002
    6.3 1.6
    200 1.6 0.32 0.2
    6.3 1.26
    80 78.8 63 160 1.6 0.64 0.4
    6.3 2.5
    200 1.6 0.5 0.32
    6.3 2
    100
    125
    125 100 160 1.6 1 0.63
    6.3 3.97
    200 1.6 0.8 0.5
    6.3 3.2
    150 313 250 160 1.6 2.56 1.6
    6.3 10
    200 1.6 2 1.25
    6.3 7.9
    200 500 400 160 1.6 4 2.5
    6.3 16
    200 1.6 3.2 2
    6.3 12.6
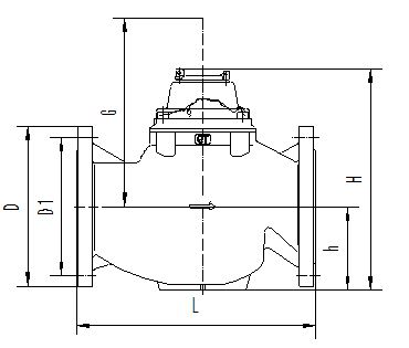
    Dimensions
    Vertical Woltman Helix Water Meter
    Model Length Height Connecting flange GB/T17241.6-1998
    L H h G External diameter of flange D Bolt circle diameter D1 Connection bolt n-M
    mm
    40 280 228 85 268 150 110 4-M16
    245 218 75 260 Threaded connection G2B
    50 280 228 85 268 165 125 4-M16
    65 200 235 85 280 185 145 4-M16
    80S 225 282 103 344 200 160 8-M16
    80 370
    100S 250 303 116 350 220 180 8-M16
    100 370
    125 250 302 118 365 250 210 8-M16
    150 500 430 155 565 285 240 8-M20
    200 500 505 190 384 340 295 8-M20
    12-M20
    (MAP16)
    Working Conditions
    • Suitable for cold water ≤50℃
    • Water pressure ≤1MPa, 1.6MPa
    • Upstream & downstream flow field sensitivity class: UO DO.
    Features
    • Vertical Woltman helix water meter reduces friction and enhances lifespan.
    • A stainless steel strainer is built into the meter, saving the cost and hassle of external filters.
    • Capable of handling a variety of flow rates, making it versatile for multiple applications.
    • Equipped to adapt to modern metering needs with options for remote data transmission.
    Related Products
    • Horizontal Woltman Helix Water Meter
      Horizontal Woltman Helix Water Meter
    • Vertical Woltman Helix Water Meter
      Vertical Woltman Helix Water Meter
    • Combination Water Meter
      Combination Water Meter
    • Ultrasonic Water Meter with M-BUS Interface
      Ultrasonic Water Meter with M-BUS Interface
    • Woltman Irrigation Water Meter
      Woltman Irrigation Water Meter
    Get in touch

    Got questions about our water meters? Contact us for detailed information and expert guidance.

    • Smart Water Meters
        Prepaid Water Meter
        Remote Water Meter
        Water Meter with Pulse Output Photoelectric Water Meter
    • Mechanical Water Meters
        Single Jet & Multi Jet Water Meters
        Dry Dial Water Meter Super Dry Dial Water Meter Wet Dial Water Meter Single-Jet Water Meter Multi-Jet Super Dry Dial Water Meter Mini Single-Jet Water Meter Volumetric Water Meter
        Woltman Bulk Water Meters
        Horizontal Woltman Helix Water Meter Vertical Woltman Helix Water Meter Combination Water Meter Ultrasonic Water Meter with M-BUS Interface Woltman Irrigation Water Meter
    • Water Meter Accessories
        Water Meter Box
        Basket Strainer
    • OEM ServiceOEM Service
    • Quality AssuranceQuality Assurance
    Other Products
    • Plastic Water Meter Box
      Plastic Water Meter Box See More
    • Ductile Iron Basket Strainer
      Ductile Iron Basket Strainer See More
    • Prepaid Water Meter
      Prepaid Water Meter See More
    • Water Meter with Pulse Output
      Water Meter with Pulse Output See More
    • Photoelectric Water Meter
      Photoelectric Water Meter See More
    • Dry Dial Water Meter
      Dry Dial Water Meter See More
    • Super Dry Dial Water Meter
      Super Dry Dial Water Meter See More
    • Wet Dial Water Meter
      Wet Dial Water Meter See More
    • Single-Jet Water Meter
      Single-Jet Water Meter See More
    • Multi-Jet Super Dry Dial Water Meter
      Multi-Jet Super Dry Dial Water Meter See More
    Why Us

    Since 1966, Lianyungang Water Meter Co., Ltd. has been an innovation in water meter technology. Based in Jiangsu Province, we're recognized as a high-tech enterprise for our innovative and reliable solutions. We combine decades of experience with a commitment to quality, making us a trusted choice for customers worldwide. Langhua is not just about water meters; it's about delivering efficient and accurate water management tools.

    • Company experience Company experience 58+

      Established in 1966, Lianyungang Water Meter Co., Ltd. has been at the vanguard of the water meter industry for over 57 years. Our journey from a modest beginning to a nationally recognized high-tech enterprise in Jiangsu Province exemplifies our commitment to quality and customer satisfaction.

    • Annual output Annual output 3,000,000+

      Thanks to our advanced manufacturing facility and advanced production lines, we can achieve an annual output of over 3 million water meters. This capacity reflects our excellent manufacturing capabilities and our ability to meet the growing demands of both national and international markets.

    • OEM Service OEM Service

      Our OEM services demonstrate our flexibility and expertise in customization. Catering to a broad range of needs, we've provided hundreds of companies with tailor-made water meters, ensuring precise measurements and durability across various applications.

    View More
    Lianyungang Water Meter Co., Ltd.Smart Water Meters

    Renowned for our expertise since 1966, Langhua offers a comprehensive array of water meters. From the simplest residential meters to complex industrial solutions, our products embody innovation, durability, and accuracy, serving a diverse global market.

    About Us
    • Company Profile
    • History
    • Quality Assurance
    • FAQ
    Products
    • Smart Water Meters
    • Mechanical Water Meters
    • Water Meter Accessories
    Contact Us
    +86-518-86097577